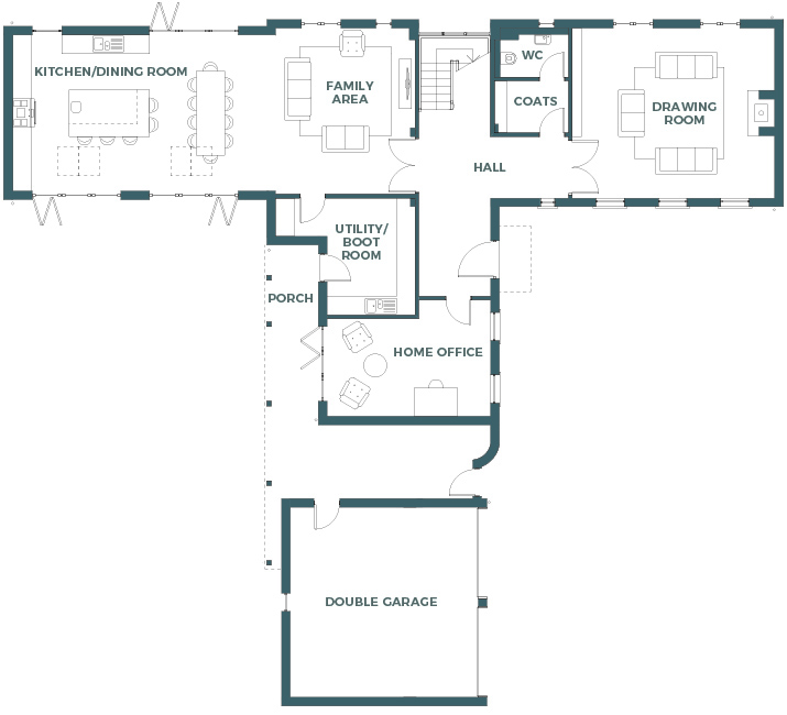
Park House has a beautifully considered layout, with the kitchen/living area opening out onto the garden on two sides through bifold doors. Its vaulted ceiling gives a fantastic sense of space and airiness; top quality appliances and finishes ensure that time will be well spent cooking and relaxing in here.

